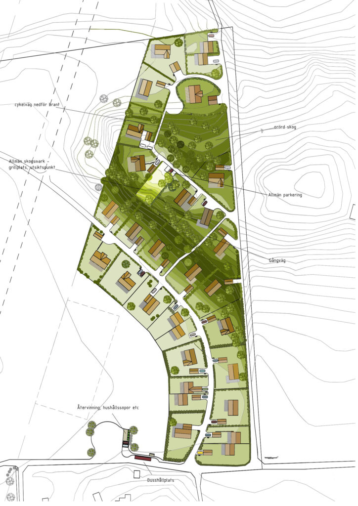
Ute på landsbygden i Grödinge planeras ett nytt bostadsområde för människor som vill leva naturnära men ändå ha stadens bekvämligheter nära. Bebyggelsen är tänkt att vara varierad i form och uttryck men inspirerad i material och skala av omgivande miljö. Husen ligger i en kuperad terräng i skogsbrynet och blickar ut över omgivande åkrar.



